Drawing creation method
深酒図面作成方法
深酒図面サンプル一覧
深夜酒類提供飲食店営業届と1号営業許可申請に使用する内法求積図(客室・調理場)サンプルを数パターンを掲載しています。深酒図面作成をご自身でチャレンジして対応できない場合は和虎行政書士法人がしっかりサポートいたします。
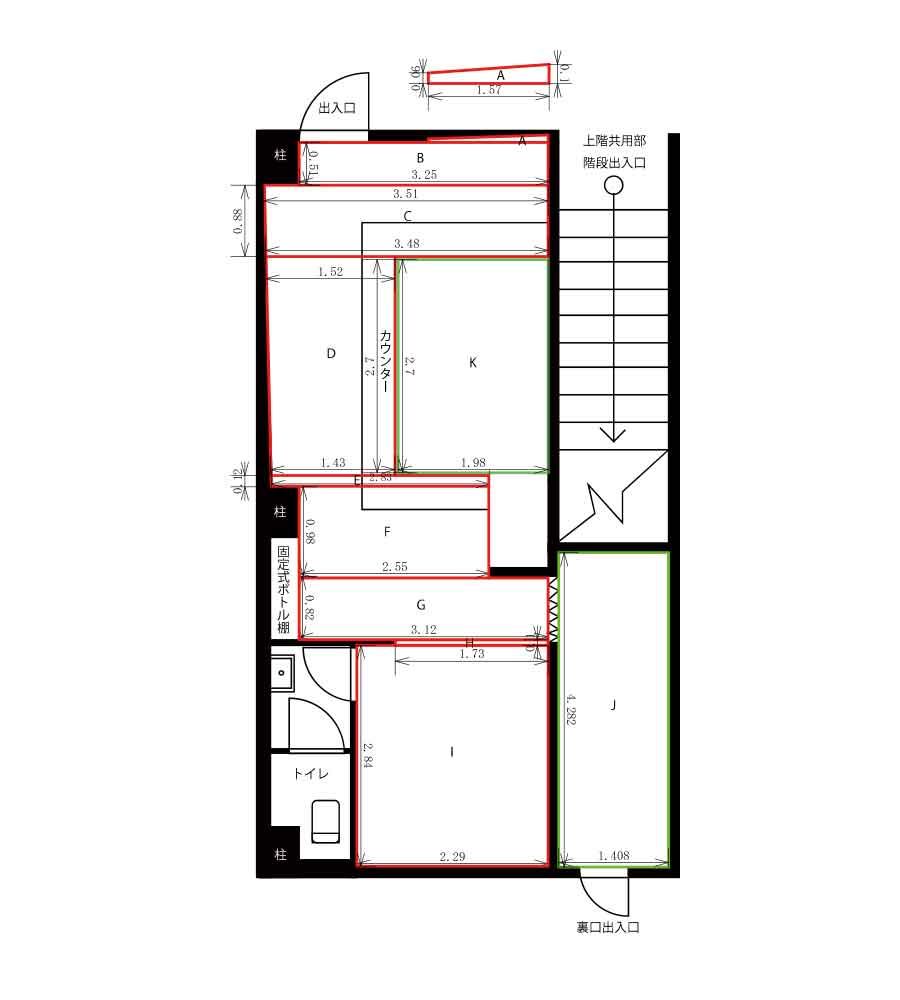
深酒求積図サンプル①

深夜酒類提供飲食店営業届の求積図及び各種図面作成は和虎行政書士法人にお任せください。格安で図面作成代行及びフルサポートいたします。
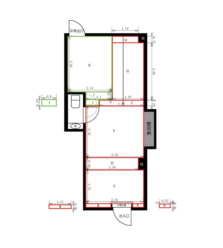
深酒求積図サンプル②

深酒図面作成のみの場合は38,500円税込~ご対応可能です。もちろんご依頼後の追加費用等は一切いただきません。
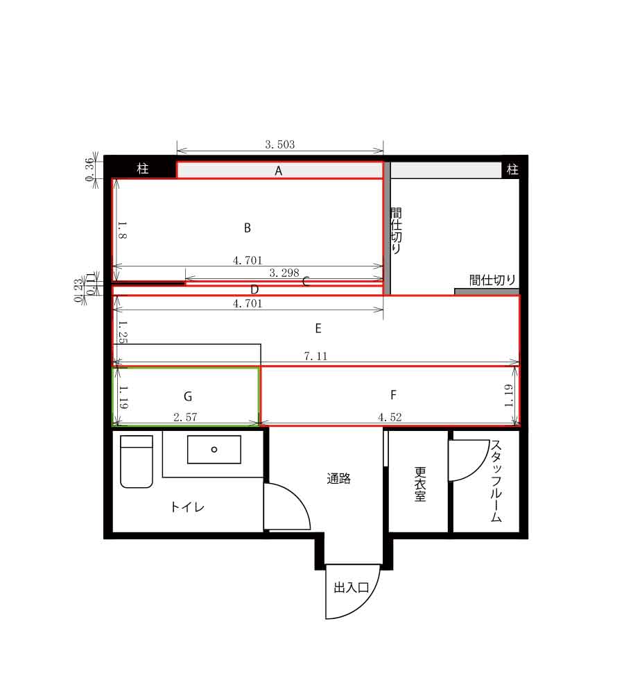
深酒求積図サンプル③

和虎行政書士法人は深夜酒類提供飲食店営業届と1号営業許可申請の専門行政書士事務所です。警察署の図面作成はお任せください。
深酒求積図サンプル④

東京都、埼玉県、神奈川県、千葉県中心に深夜酒類提供飲食店営業届代行をおこなっています。関東以外は関西エリアもご対応可能です。
深酒求積図サンプル⑤

小さい深夜営業飲食店から大型の深夜営業飲食店まで相場料金よりお安く代行いたします。
深酒求積図サンプル⑥

深酒用の求積図でお困りの行政書士さんからの助っ人ご依頼も喜んでご対応いたします。スポットで行政書士なら和虎行政書士法人。
対応エリア
- 東京都
- 東京23区(千代田区、台東区、文京区、中央区、足立区、荒川区、板橋区、江戸川区、大田区、葛飾区、北区、江東区、品川区、渋谷区、新宿区、杉並区、墨田区、世田谷区、豊島区、中野区、練馬区、港区、目黒区) 昭島市、あきる野市、稲城市、青梅市、清瀬市、国立市、小金井市、国分寺市、小平市、狛江市、立川市、多摩市、調布市、西東京市、八王子市、羽村市、東久留米市、東村山市、東大和市、日野市、府中市、福生市、町田市、三鷹市、武蔵野市、武蔵村山市
- 埼玉県
- 上尾市、朝霞市、伊奈町、入間市、小鹿野町、小川町、桶川市、越生町、春日部市、加須市、神川町、上里町、川口市、川越市、川島町、北本市、行田市、久喜市、熊谷市、鴻巣市、越谷市、さいたま市(西区、北区、大宮区、見沼区、中央区、桜区、浦和区、南区、緑区)、坂戸市、幸手市、狭山市、志木市、白岡市、杉戸町、草加市、秩父市、鶴ヶ島市、ときがわ町、所沢市、戸田市、長瀞町、滑川町、新座市、蓮田市、鳩山町、羽生市、飯能市、東秩父村、東松山市、日高市、深谷市、富士見市、ふじみ野市、本庄市、松伏町、三郷市、美里町、皆野町、宮代町、三芳町、毛呂山町、八潮市、横瀬町、吉川市、吉見町、寄居町、嵐山町、和光市、蕨市
- 神奈川県
- 横浜・川崎地域、県央地域、横須賀三浦地域(三浦半島)、足柄上地域、湘南地域、西湘地域、県北地域、横浜市(鶴見区、神奈川区、西区、中区、南区、港南区、保土ヶ谷区、旭区、磯子区、金沢区 港北区 緑区 青葉区、都筑区、戸塚区、栄区、泉区、瀬谷区)、川崎市、厚木市、大和市、海老名市、座間市、綾瀬市、愛川町、清川村、横須賀市、鎌倉市、逗子市、三浦市、葉山町、南足柄市、中井町、大井町、松田町、山北町、開成町、平塚市、藤沢市、茅ヶ崎市、秦野市、伊勢原市、寒川町、大磯町、二宮町、小田原市、箱根町、真鶴町、湯河原町、相模原市、城山町、藤野町
- 千葉県
- 千葉市、市原市、市川市、船橋市、習志野市、八千代市、浦安市、松戸市、野田市、柏市、流山市、我孫子市、鎌ケ谷市、館山市、木更津市、鴨川市、君津市、富津市、袖ケ浦市、南房総市、鋸南町、銚子市、成田市、佐倉市、旭市、四街道市、八街市、印西市、白井市、富里市、匝瑳市、香取市、印旛村、栄町、酒々井町、本埜村、神崎町、多古町、東庄町、茂原市、東金市、勝浦市、山武市、いすみ市、、大網白里町、九十九里町、芝山町、横芝光町、長生村、一宮町、睦沢町、白子町、長柄町、長生郡 長南町、大多喜町、夷隅郡 御宿町
弊所即日対応可能警察署
深夜酒類営業届出
東京都
赤坂警察署・赤羽警察署・麻布警察署・浅草警察署・愛宕警察署・綾瀬警察署・荒川警察署・池上警察署・池袋警察署・板橋警察警察署・上野警察署・牛込警察署・荏原警察署・大井警察署・大崎警察署・王子警察署・大塚警察署・大森警察署・荻窪警察署・尾久警察署・葛西警察署・葛飾警察署・蒲田警察署・亀有警察署・神田警察署・北沢警察署・蔵前警察署・小岩警察署・麹町警察警察署・駒込警察署・小松川警察署・下谷警察署・渋谷警察署・品川警察署・志村警察署・石神井警察署・城東警察署・新宿警察署・巣鴨警察署・杉並警察署・成城警察署・世田谷警察署・千住警察署・高井戸警察署・高島平警察署・高輪警察署・滝野川警察署・竹の塚警察署・玉川警察署・田無警察署・中央警察署・調布警察署・月島警察署・築地警察署・田園調布警察署・東京空港警察署・東京湾岸警察署・戸塚警察署・富坂警察署・中野警察署・西新井警察署・練馬警察署・野方警察署・原宿警察署・光が丘警察署・久松警察署・碑文谷警察署・深川警察署・府中警察署・本所警察署・町田警察署・丸の内警察署・万世橋警察署・三田警察署・南千住警察署・向島警察署・武蔵野警察署・目黒警察署・目白警察署・本富士警察署・四谷警察署・代々木警察署
神奈川県
- 横浜市
- 神奈川警察署・戸部警察署・伊勢佐木警察署・山手警察署・南警察署・加賀町警察署・瀬谷警察署・緑警察署・旭警察署・都筑警察署・横浜水上警察署・港北警察署・港南警察署・保土ケ谷警察署・鶴見警察署・磯子警察署・金沢警察署・青葉警察署・戸塚警察署
- 川崎市
- 幸警察署・麻生警察署・中原警察署・宮前警察署・川崎警察署・多摩警察署・川崎臨港警察署・高津警察署